Villa singola in vendita

Asti, Frazione Casabianca - Casabianca
€ 179.000
Prezzo aggiornato
7 locali 7 locali
255 Mq 255 Mq
4 bagni 4 bagni

Villa singola in vendita

Asti, Frazione Casabianca - Casabianca

Descrizione annuncio

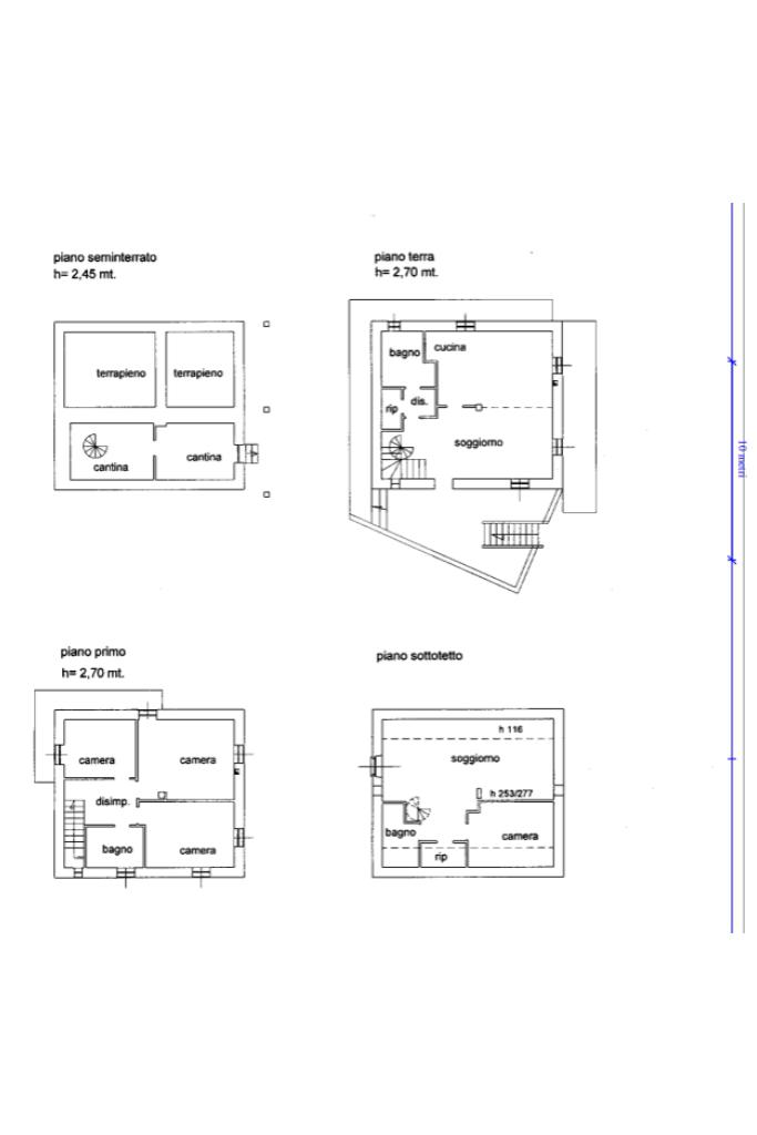
Villa su più livelli con cortile privato. Al piano terreno ampia zona giorno con bagno dedicato; al primo piano troviamo tre camere da letto ed un secondo bagno; al secondo piano un soggiornino, una quarta stanza ideale come studio ed un terzo bagno; al piano interrato cantina e servizio.
Completano la proprietà box auto ed un locale magazzino di ampia metratura.

Informazioni e appuntamenti allo 01411762273

Mostra tutto

Nelle vicinanze

Trasporto pubblico Trasporto pubblico
Trasporto pubblico
2,3 Km
Asti (Bricco Fassio-Palucco)
Asti (Bricco Fassio-Palucco)
1,8 Km
Asti (Centro ASL)
Asti (Centro ASL)
2,2 Km
Farmacia Farmacia
Farmacia del Palucco
1,8 Km
Negozi Negozi
Antico sapore del pane
2,6 Km
Bar Bar
Dennis Bar
2,3 Km
Casa Nostra
2,8 Km
Vanilla Summer Club
2,9 Km
Ristoranti Ristoranti
Agriturismo La Regibussa
1,5 Km
Villa Fernanda
2,0 Km
Il Griglio Matto
2,3 Km
Antico Casale
2,5 Km
Agriturismo Il Buon seme - Progetto Agriable
2,9 Km
Mostra tutto

Caratteristiche

Rif.:
61155464
Piano:
Su più livelli di 4
Totale piani:
4
Box:
1
Posti auto:
3
Balconi:
3
Mostra tutto
Prezzo Prezzo
€ 179.000
Prezzo box Prezzo box
€ 30.000
Rata mutuo Rata mutuo
€ 843 / mese
Spese annue Spese annue
€ 0
Proponi il tuo prezzoProponi il tuo prezzo

Classe Energetica

D
D
D
D
D
D
D
D
D
EP globale non rinnovabile:
167.11 kW h/m² anno
EP globale rinnovabile:
121.65 kW h/m² anno
EP invernale del fabbricato:
EP estiva del fabbricato:
Anno di costruzione:
1900
Riscaldamento:
Autonomo
Tipo impianto:
A radiatori
Tipo alimentazione:
Gasolio

Prezzo ridotto di €1 (6%%)

Ti interessa visionare l'immobile?

Fissa un appuntamento  Fissa un appuntamento

Richiedi informazioni

Clicca su Leggi per aprire l'informativa
* Questi campi sono obbligatori

Calcola il tuo mutuo

Semplice e senza impegno
Anticipo

( % )
Mutuo

( % )

pochi semplici passi

inserisci i tuoi dati
Questionario completato
Grazie per aver richiesto un appuntamento senza impegno con un nostro Consulente del Credito e Assicurativo.

Hai inserito correttamente tutti i dati necessari e a breve riceverai una e-mail con un link da convalidare per inviare i tuoi dati.
Affiliato
Studio Corso Alfieri Sas
Corso Alfieri, 128/B 14100 Asti (AT)

Il nostro staff


  • Dario Corica
    Affiliato

  • Giulia Cisternino
    Coordinatrice

  • Daniele Feo
    Collaboratore
Corso Alfieri, 128/B 14100 Asti (AT)
Zona: Centro
Mostra su mappa
Orari: dal lunedì al venerdì: 09.00 - 12.30/14.30 - 19.30 - sabato: 09.00 - 12.30/14.30 - 18.00
Affiliato
Studio Corso Alfieri Sas
Corso Alfieri, 128/B 14100 Asti (AT)

2026 Tecnocasa Franchising S.p.A. - P. IVA 08365160152 - Via Monte Bianco 60/A 20089 Rozzano (MI). Ogni agenzia ha un proprio titolare ed è autonoma. Privacy policy | Policy utilizzo | Cookie policy