Bilocale in vendita

Asti, Via Auna - Nord
€ 95.000
2 locali 2 locali
56 Mq 56 Mq
1 bagno 1 bagno

Bilocale in vendita

Asti, Via Auna - Nord

Descrizione annuncio

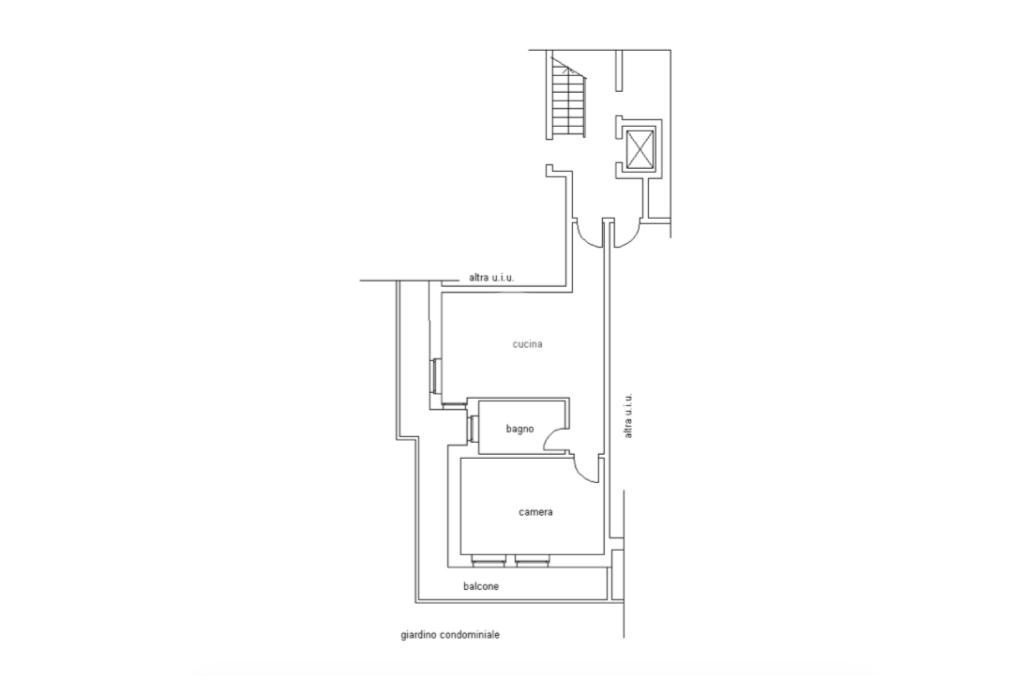
Via Auna, in piccolo contesto della zona Nord, appartamento al piano rialzato servito da ascensore. La porta d'ingresso da accesso su un luminoso soggiorno living con angolo cottura, che accompagna alla camera da letto matrimoniale ed al bagno finestrato con pratico box doccia. E' presente un balcone angolare che si estende per tutta la doppia esposizione dell'immobile. Completano la proprietà il posto auto condominiale, una cantina al piano interrato ed il box auto. L'appartamento viene venduto locato con regolare contratto d'affitto. La zona in cui si trova è tranquilla, senza però rinunciare alla comodità dei principali servizi.

Mostra tutto

Nelle vicinanze

Trasporto pubblico Trasporto pubblico
Asti
Asti
1,3 Km
Strada Fortino – Fronte Via Pellico
Strada Fortino – Fronte Via Pellico
90 m
Strada Fortino – Via Pellico
Strada Fortino – Via Pellico
100 m
Scuole Scuole
Istituto tecnico industriale statale Alessandro Artom
300 m
Polo univeritario Asti Studi Superiori
380 m
Istituto tecnico commerciale Giovanni Antonio Giobert
390 m
Scuola elementare Salvo D'Acquisto
420 m
Scuola elementare Dante Alighieri
470 m
Farmacia Farmacia
Farmacia Don Bosco
510 m
Farmacia Alfieri
610 m
Farmacia san Domenico
670 m
Nuova Farmacia san Pietro
700 m
Farmacia Centrale
740 m
Ospedali Ospedali
Ospedale Cardinal Massaia
1,3 Km
Supermercati Supermercati
Simply Market
500 m
Punto Sma
590 m
Punto Simply
690 m
Carrefour Express
690 m
Fresco più gruppo CRAI
870 m
Negozi Negozi
Negozi
480 m
Il Falco – Panetteria pasticceria
500 m
Punto Simply
540 m
Panificio Paterna
650 m
Panetteria Pasticceria La Vittoria
660 m
Bar Bar
Bar
180 m
Hdemia del gusto
400 m
Rewind
500 m
Cin Cin Bar
510 m
Bar Aurora
540 m
Ristoranti Ristoranti
Centotorri
440 m
Oriental Restaurant
460 m
Collina delle Balene
460 m
Maldera
480 m
Pizzeria Monterainero
490 m
Mostra tutto

Caratteristiche

Rif.:
61140325
Piano:
Rialzato di 3 con ascensore
Totale piani:
3
Box:
1
Posti auto:
1
Balconi:
1
Mostra tutto
Prezzo Prezzo
€ 95.000
Rata mutuo Rata mutuo
€ 450 / mese
Spese annue Spese annue
€ 2.000
Proponi il tuo prezzoProponi il tuo prezzo
Immobile valutato con T·Valuta

Classe Energetica

E
E
E
E
E
E
E
E
E
EP globale non rinnovabile:
131.44 kW h/m² anno
EP globale rinnovabile:
1.55 kW h/m² anno
EP invernale del fabbricato:
EP estiva del fabbricato:
Anno di costruzione:
1977
Riscaldamento:
Centralizzato
Tipo impianto:
A radiatori
Tipo alimentazione:
Metano

Ti interessa visionare l'immobile?

Fissa un appuntamento  Fissa un appuntamento

Richiedi informazioni

Clicca su Leggi per aprire l'informativa
* Questi campi sono obbligatori

Calcola il tuo mutuo

Semplice e senza impegno
Anticipo

( % )
Mutuo

( % )

pochi semplici passi

inserisci i tuoi dati
Questionario completato
Grazie per aver richiesto un appuntamento senza impegno con un nostro Consulente del Credito e Assicurativo.

Hai inserito correttamente tutti i dati necessari e a breve riceverai una e-mail con un link da convalidare per inviare i tuoi dati.
Affiliato
Studio Corso Alfieri Sas
Corso Alfieri, 128/B 14100 Asti (AT)

Il nostro staff


  • Dario Corica
    Affiliato

  • Giulia Cisternino
    Coordinatrice

  • Daniele Feo
    Collaboratore
Corso Alfieri, 128/B 14100 Asti (AT)
Zona: Centro
Mostra su mappa
Orari: dal lunedì al venerdì: 09.00 - 12.30/14.30 - 19.30 - sabato: 09.00 - 12.30/14.30 - 18.00
Affiliato
Studio Corso Alfieri Sas
Corso Alfieri, 128/B 14100 Asti (AT)

2026 Tecnocasa Franchising S.p.A. - P. IVA 08365160152 - Via Monte Bianco 60/A 20089 Rozzano (MI). Ogni agenzia ha un proprio titolare ed è autonoma. Privacy policy | Policy utilizzo | Cookie policy